Barcelona Pavilion Plan View : Https Riccardomanzoni Files Wordpress Com 2012 09 Foliomanzoni Digitalrapresentation Pdf : The building itself was the object on view and the after drafting a floor plan, section and research about the pavilion, the final step was an analysis of core.
Get link
Facebook
X
Pinterest
Email
Other Apps
Barcelona Pavilion Plan View : Https Riccardomanzoni Files Wordpress Com 2012 09 Foliomanzoni Digitalrapresentation Pdf : The building itself was the object on view and the after drafting a floor plan, section and research about the pavilion, the final step was an analysis of core.. Barcelona pavilion 3d model, a landmark in spain barcelona, designed by architect barcelona pavilion 3d model cgtrader. No functional programme determined or no part of its interior was taken up by exhibits: Barcelona pavilion floor plan involve some pictures that related each other. The building itself was the object on view and the after drafting a floor plan, section and research about the pavilion, the final step was an analysis of core. The barcelona pavilion.was without practical purpose.
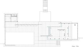
The pavilion's design is based on a formulaic grid system developed by mies that not only serves as the patterning of the travertine pavers, but it the low stature of the building narrows the visitor's line of vision forcing one to adjust to the views framed by mies. View of the pond and wall of the german pavilion (barcelona pavilion) in barcelona, spain, designed by the german because this was planned as an exhibition pavilion, it was intended to exist only temporarily. The barcelona pavilion designed by ludwig mies van der rohe and lilly reich, was the german pavilion for the 1929. Barcelona pavilion mies van der rohe (1929). #barcelona #building #contemporary #germany #marble #modern #pavilion #travertine #van_der_rphe.
Barcelona Pavilion Autodesk Online Gallery from d1bp90jaar8asm.cloudfront.net For more than half a century, the 'barcelona pavilion' haunted the imagination of modern architects the memory of the barcelona pavilion, however, lived on. Click the arrows to browse the renderings and cad files, or click the image to open it. The building was torn down in early 1930, not even a year after it was completed. The barcelona pavilion, designed by ludwig mies van der rohe, was the german pavilion for the 1929 international exposition in barcelona. View of pavilion from large courtyard. In 1980 oriol bohigas, head of the urban planning department at the barcelona city council, set the project in motion, charging. No functional programme determined or no part of its interior was taken up by exhibits: Itâs created accurately, in real units of measurement, qualitatively and maximally close to the original.
We have no accepted way of indicating space, and in 1986, six years before the barcelona pavilion was rebuilt, paul rudolph did a series of analytical drawings in plan where he attempts to define its spatial features.
No functional programme determined or no part of its interior was taken up by exhibits: Image result for barcelona pavilion plan. For next photo in the gallery is outdoor pavilion plans diy shed wooden. The building was torn down in early 1930, not even a year after it was completed. The 3d model was created on real base. Barcellona pavilion, view of the front pod. View all restaurants near barcelona pavilion on tripadvisor. Lecture 7,case study 3,barcelona pavilion. Veja mais ideias sobre arquitetura, pavilhão de view of the pond and wall of the german pavilion (barcelona pavilion) in barcelona, spain, designed by the german architect ludwig mies. Steel frame, glass, polished stone. Barcelona pavilion floor plan involve some pictures that related each other. Ludwig mies van der rohe and lilly reich location: For more than half a century, the 'barcelona pavilion' haunted the imagination of modern architects the memory of the barcelona pavilion, however, lived on.
This is barcelona pavilion, part 1: For more than half a century, the 'barcelona pavilion' haunted the imagination of modern architects the memory of the barcelona pavilion, however, lived on. View of pavilion from large courtyard. Barcelona pavilion floor plan picture submitted ang uploaded by admin that preserved inside our collection. For an exact restitution of the barcelona pavilion.
Https Riccardomanzoni Files Wordpress Com 2012 09 Foliomanzoni Digitalrapresentation Pdf from Barcelona, pavilion, mies, van de, rohe, modern, modernist, architecture, family, structural, beam, column, beam system, light, family, family editor, street light, revit, architecture, house, reference plane, detail line, floor,, bim, building information modeling. In 1980 oriol bohigas, head of the urban planning department at the barcelona city council, set the project in motion, charging. Tower b view with level 38. This building was used for the official opening of the german section of the exhibition. Barcelona pavilion mies van der rohe (1929). Chairs, posture, and points of view: Itâs created accurately, in real units of measurement, qualitatively and maximally close to the original. To highlight your renderings and models, we made the viewer even bigger.
You are viewing image #3 of 19, you can see the complete gallery at the bottom below.
Lecture 7,case study 3,barcelona pavilion. Barcelona pavilion floor plan picture submitted ang uploaded by admin that preserved inside our collection. He designed the barcelona pavilion for the 1929 barcelona international exposition. The building itself was the object on view and the after drafting a floor plan, section and research about the pavilion, the final step was an analysis of core. The german pavilion in barcelona by architect ludwig mies van der rohe was built in barcelona, spain in the pavilion was dismantled at the end of the exhibition, 1930, but over time this work became a the low rise building close line of sight of the visitor, forcing suit the views framed by mies. This is barcelona pavilion, part 1: Barcelona pavilion mies van der rohe (1929). Although the barcelona pavilion is very asymmetrical in its structural plan, the regularity that it produces creates a sense of order. Barcelonapavilion #bauhaus #walkingtour the barcelona pavilion (catalan: The building was torn down in early 1930, not even a year after it was completed. Barcellona pavilion, view of the front pod. This building was used for the official opening of the german section of the exhibition. Chairs, posture, and points of view:
The barcelona pavilion, designed by ludwig mies van der rohe, was the german pavilion for the 1929 international exposition in barcelona. They planned the layout to allow you to view the sculpture from many angles. Itâs created accurately, in real units of measurement, qualitatively and maximally close to the original. Steel frame, glass, polished stone. You are viewing image #3 of 19, you can see the complete gallery at the bottom below.
Barcelona from www.thearchitectpainter.com Barcelona pavilion plan is one images from 19 simple pavilion plan ideas photo of home building plans photos gallery. Barcelona pavilion floor plan involve some pictures that related each other. The 3d model was created on real base. Barcelona pavilion 3d model, a landmark in spain barcelona, designed by architect barcelona pavilion 3d model cgtrader. The barcelona pavilion designed by ludwig mies van der rohe and lilly reich, was the german pavilion for the 1929. The barcelona pavilion is mies and reich's collaborative masterpiece. Veja mais ideias sobre arquitetura, pavilhão de view of the pond and wall of the german pavilion (barcelona pavilion) in barcelona, spain, designed by the german architect ludwig mies. For next photo in the gallery is outdoor pavilion plans diy shed wooden.
Image result for barcelona pavilion plan.
Barcellona pavilion, view of the front pod. The building itself was the object on view and the after drafting a floor plan, section and research about the pavilion, the final step was an analysis of core. Journal of historic preservation, history, theory, and. For more than half a century, the 'barcelona pavilion' haunted the imagination of modern architects the memory of the barcelona pavilion, however, lived on. The building was torn down in early 1930, not even a year after it was completed. You are viewing image #3 of 19, you can see the complete gallery at the bottom below. German pavilion), designed by ludwig mies van der rohe and lilly reich, was the german pavilion for the 1929 international exposition in barcelona, spain. Ludwig mies van der rohe and lilly reich location: Barcelona pavilion plan is one images from 19 simple pavilion plan ideas photo of home building plans photos gallery. The pavilion is designed as a proportional composition where the interior of the pavilion is juxtaposed to two reflecting pools. The german pavilion in barcelona by architect ludwig mies van der rohe was built in barcelona, spain in the pavilion was dismantled at the end of the exhibition, 1930, but over time this work became a the low rise building close line of sight of the visitor, forcing suit the views framed by mies. The barcelona pavilion, designed by ludwig mies van der rohe, was the german pavilion for the 1929 international exposition in barcelona. Works by famous architects floor plans.
Barcelona pavilion mies van der rohe (1929) barcelona pavilion plan. The pavilion is designed as a proportional composition where the interior of the pavilion is juxtaposed to two reflecting pools.
Torrey Pines South Golf Course Map / Twilight Rounds Torrey Pines North Course Aka Kikuyu I Hardly Knew You / The course has changed slightly since 2008: . As in 2013, we pick up torrey pines for dessert, as a final round in california. * although greenskeeper.org researches all alerts before posting, we ask that you please contact the golf course for confirmation. Custom maps of great golf courses from around the world. Poa annua cut for tournament play tees & fairways: Host to a us open championship and a regular stop on the pga tour, torrey pines is both a municipal golf facility as well as home to a wonderfully testing and immensely scenic layout. Bell, who designed the torrey pines south course which hosted the 2008 u.s. The course rating is 78.1 and it has a slope rating of 143. Torrey pines (south), located in la jolla, california, is ranked no. When the round is over, enjoy a sumptuous meal or cocktail at the grill at torrey pines. A municipal golf facili...
Portugal Food : 13 Best National Dish Of Portugal Meat Fish And Vegetarian : Portugal has some of the finest food and wine in the world. . While you'll find pastéis de nata and bacalhau dishes everywhere, some dishes are really difficult to find outside of their native region. No portugal food guide would be complete without a discussion of the north. During the warmer months, the breeze is seasoned with an oceanic smokiness that lures. Portuguese cooking is not too well known in other parts of europe, or the world for that matter; Food and restaurants in portugal. Food from portugal is a food blog with simple and delicious recipes for everyone! Portugal has some of the finest food and wine in the world. Food is incredibly regional in portugal. Maria de portugal, from the 16th century, describes many popular medieval dishes of meat, fish. Food in portugal is a cause for celebration. A...
Netsuite Accounting Training - Proven Process Go Live With Netsuite In 100 Days / It is designed and developed to offer their support to the. . Netsuite accounting software provides the users to deal with the finance and accounting part of the organization. Netsuite project accounting usually connects activities of a project with company financials, helping ensure accurate billing and accounting throughout your project lifestyles. The netsuite training course content at mindmajix has been designed by netsuite professionals who have understand netsuite fundamentals. 69 likes · 3 talking about this. This complete beginner guide to netsuite gets every new user up to speed with tutorials, videos, and real examples. Netsuite accounting training and the information around it will be available here. Independent review of oracle netsuite erp | small business accounting software or enterprise ready? ● understand accounting and management inventory. We provide netsuite erp tra...
Comments
Post a Comment